Casa en venta en Gustei para reformar.
Casa en venta en Gustei para reformar, disponible para realizar una reforma integral conservando la autenticidad de su fachada y el encanto natural de sus alrededores.
Además de contar con un proyecto diseñado para el aprovechamiento máximo de las condiciones externas de la casa y acoger un hogar práctico, con encanto y funcional para el día a día.
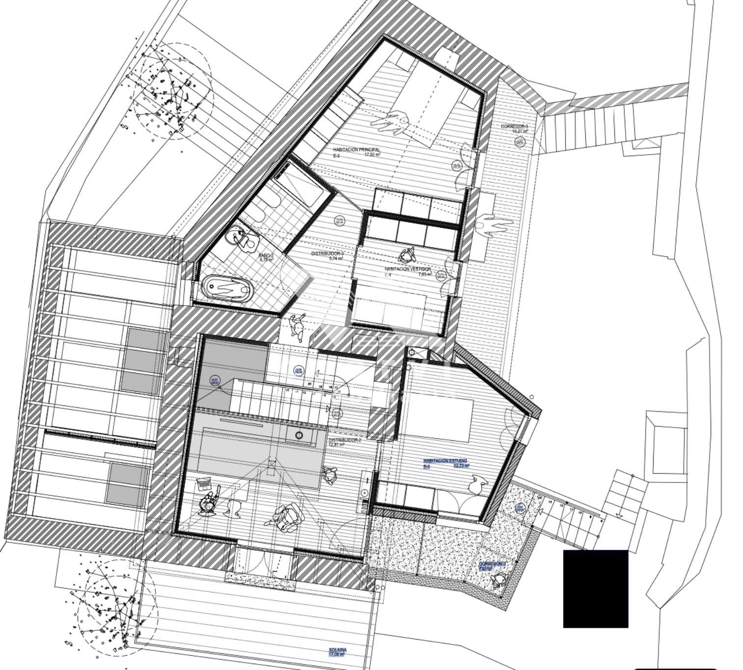
Su distribución actual se basa en tres dormitorios, un baño, cocina, bodega, jardín con hórreo, terraza corredor y garaje exterior.
Cualidades de su proyecto:
Destaca por una increíble zona de noche que contempla una habitación principal con baño y vestidor, más una habitación complementaria, así como una pequeña sala de estar con vistas y dos balcones de tipo corredor para disfrutar del entorno.
En su planta inferior, contaría con una cocina estilo americano, salón comedor, baño y zona de lavandería. En su exterior, cuenta con una solaina y plaza de garaje techada y exterior, con capacidad para más de dos coches.
Si tienes dudas sobre las opciones de reforma de esta casa en venta, permisos o ejecución de obra, en COARVI CONSTRUCCIONES contamos con un equipo técnico con amplia experiencia en reformas y rehabilitación de viviendas de este tipo.
Nuestro equipo comercial está disponible 24 horas del día vía whatsapp 645 59 72 67 o recibe más información en nuestras oficinas físicas por Avda. Celanova 68, A Valenzá, Barbadás.
Consulta en nuestro catálogo, propiedades similares de la zona o explora más detalles sobre este interesante anuncio.
Parte del material fotográfico pertenece a la propiedad y estudio de arquitectura
¡Concreta una visita ahora!
Ubicación
Nuestro asesor está preparado para visitar contigo tu próximo hogar.
inmobiliaria@coarvi.com
Av. Celanova 68,
A Valenzá, Barbadás, Ourense.
988 382 820
645 59 72 67

































